3-izbový byt na predaj v lokalite Ružomberok
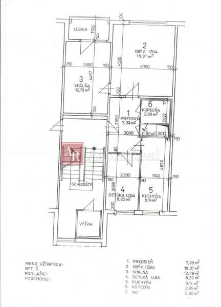
AstonReal ponúka na predaj 3 izbový byt s loggiou, nachádzajúci sa v zateplenom panelovom bytovom dome s výťahom na sídlisku Klačno v Ružomberku. Byt je po čiastočnej rekonštrukcii - bezpečnostné vchodové dvere, interiérové dvere, plastové okná so žalúziami, obložené bytové jadro s vaňou, samostatné WC, menené rozvody v stúpačke. Dispozícia bytu: vstupná chodba, kúpeľňa, WC, kuchyňa, detská izba, obývacia izba s prechodom do spálne s loggiou. Kúrenie v byte je ústredné s pomerovými meračmi na radiátoroch. Náklady na bývanie 140€/2os + energie, plocha bytu 60,5m2, orientácia SV/JZ. K bytu patrí aj pivnica v suteréne domu. Parkovanie pred obytným domom. Bližšie info Vám radi poskytneme na obhliadke nehnuteľnosti a na tel. č. 0915331561, bado@astonreal.sk.
Podrobné informácie
Poloha nehnuteľnosti na mape
Ružomberok, Slovensko
Pre viac informácií kontaktujte
